Header Images
Alumhurst Road, Bournemouth
Property Features
- ONE BED FLAT
- PARKING
- SHARE OF FREEHOLD
- CLOSE TO BEACH
- CLOSE TO WESTBOURNE HIGH STREET
- MORDERN BUILDING
- GAS CENTRAL HEATING
Property Summary
Full Details
Tenure: Share of Freehold
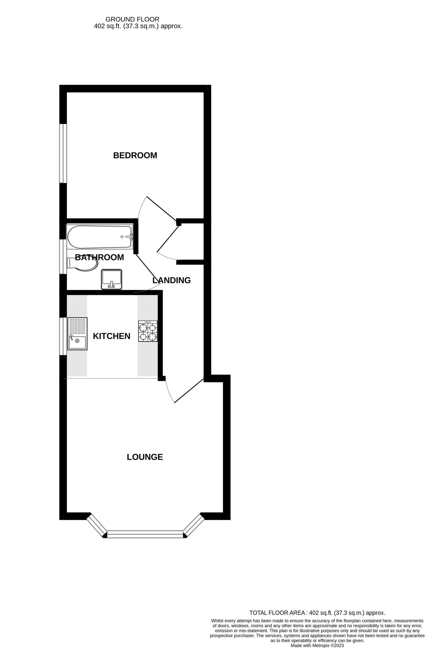
The property is accessed via a secure communal entrance where stairs lead up to the first floor and the private entrance to the apartment itself. The hallway includes doors to principal rooms.
There is an open plan kitchen lounge diner which is exceptionally bright and includes ample space for a table and chairs as well as a feature UPVC double glazed window which overlooks the front aspect. The beautiful kitchen has been well fitted to include a range of base and eye level work units with integrated appliances and a further window overlooking the side.
The bedroom is a generous double room with more than enough room for wardrobes and drawers as required. The main bathroom is tiled with a Velux window comprising bath/shower, WC and wash hand basin.
Outside there is an allocated parking space conveyed with the apartment located behind the block.
We have been advised the following information from the vendor. Please note this will need to be verified via solicitors:
Lease 125 years from 29th June 2007 - Service Charge - £529.75 every 6 months - Peppercorn Ground Rent
ROOM SIZES: 3.95M X 3.44M - LOUNGE , 2.36M X 1.99M - KITCHEN , 1.81M X 1.75M - BATHROOM , 3.11M X 3.45M - BEDROOM
Location: Alum Chine is a sought after residential area situated between the beach and Westbourne Village. Alum Chine offers beautiful sandy beaches and a selection of restaurants along the front within walking distance, one of which is situated directly on the promenade at Alum Chine itself. A peaceful stroll through the exotic woodlands of the chine brings you to Westbourne Village which offers an excellent range of independently owned shops, bars, coffee shops and restaurants.
The Bournemouth Wessex Way is very close and gives direct access to the M27 motorway with London just 2 hours commute. There are also main line train routes from either Poole or Bournemouth railway stations which connect the Weymouth to London Waterloo South West train service.




















Investment Properties