Header Images
Ashley Road
Property Features
- THREE BEDROOM
- GROUND FLOOR FLAT
- OFF STREET PARKING
- IDEAL LOCATION
- SOUTH FACING GARDEN
- CHAIN FREE
- IDEAL INVESTMENT OR FIRST TIME BUY
Property Summary
VACANT/NO FORWARD CHAIN.
Full Details
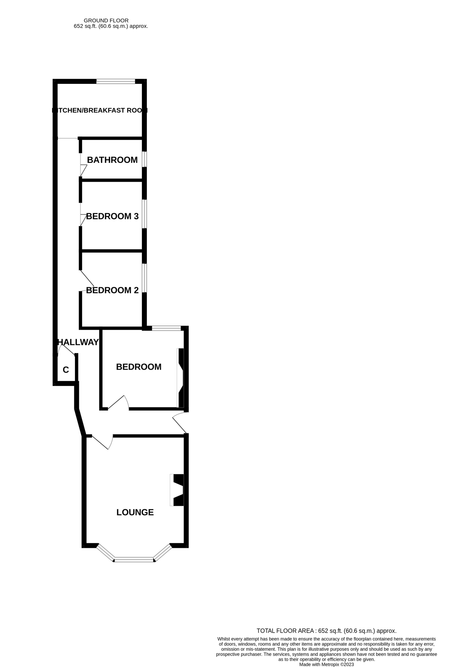
***GROUND FLOOR GARDEN FLAT***SOUTH FACING*** well presented three bedroom converted ground floor garden flat. The property benefits from off road parking and having its own private south facing rear garden.
VACANT/NO FORWARD CHAIN.
A 3 Bedroom Ground Floor Garden Flat with off road parking, Ideally Located Just A Few Minutes Level Walk From The Ashley Road Shops & Facilities.
Hall, Lounge, Kitchen, 3 Bedrooms, Bathroom, Southerly Aspect Rear Garden, Gas Heating, UPVC Double Glazing.
We have been advised the following:
The lease is up to and including 24th March 2142 so 119 years from March 24th 2023.
The ground rent 25/3/23 was £500, and the Insurance was £435.23 on 4/4/23.
We are pleased to offer for sale this 3 BEDROOMED GROUND FLOOR GARDEN FLAT. Within easy reach are the New Forest, Bournemouth International Airport and the town centres of Bournemouth and Poole, which offer a wide range of shopping, entertainment and recreational facilities. Train services to London Waterloo run from Bournemouth and Poole Stations and there are ferry sailings from Poole to Cherbourg. Situated on the South Coast, to the south, are the safe sandy beaches of Poole Bay and Poole Harbour, renowned for its fishing and boating facilities.




























Investment Properties